• 1822阅读
  • 0回复

[义乌城事]祥聚园175边套出租 [复制链接]

上一主题 下一主题
离线不管不管
 

发帖
2
奖学金
8
威望
17
微信分享到朋友圈 图酷模式 只看楼主 倒序阅读 腔主  发表于: 昨天 13:50 , 来自: 浙江省
马上注册,结交更多好友,享用更多功能,让你轻松玩转义乌十八腔,更多精彩评论请登录后查看。
  已有账号?点击登录
关闭
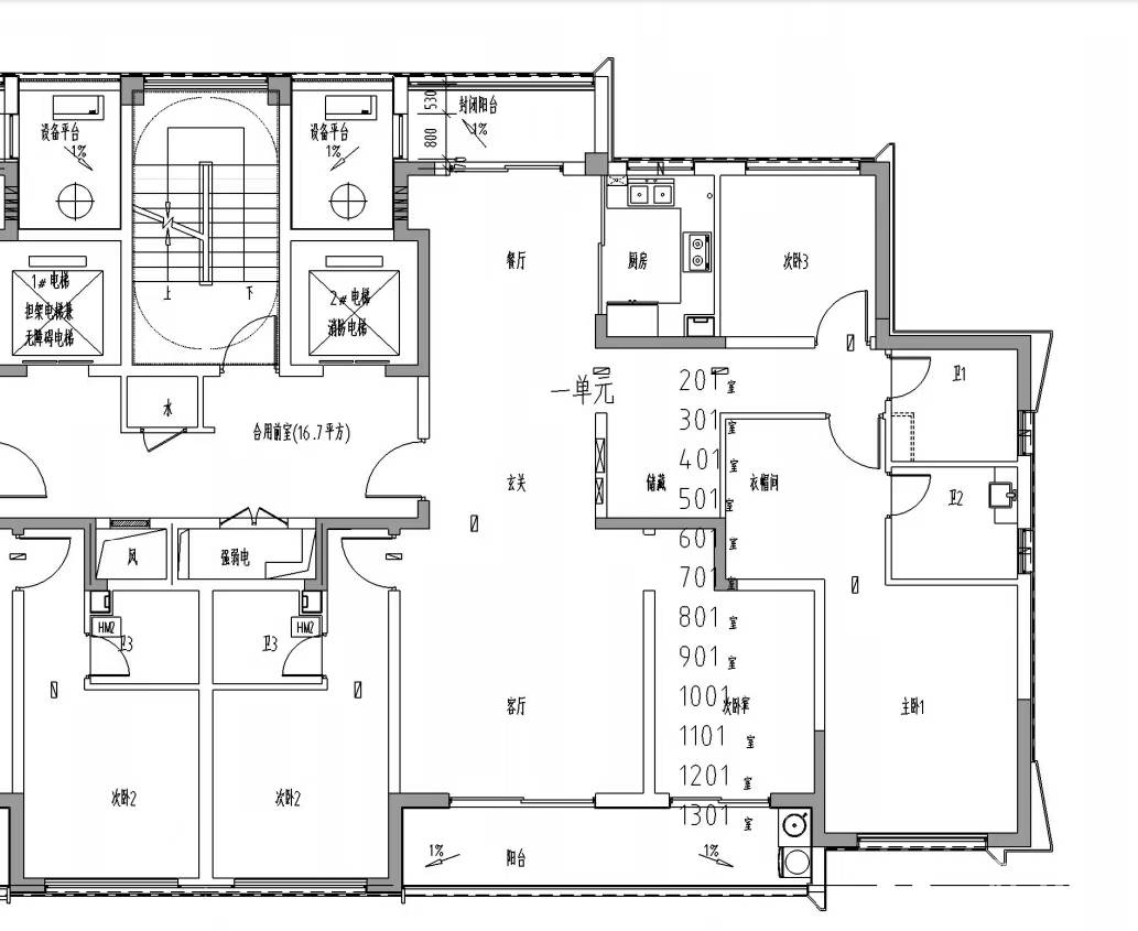
北苑祥聚园178平毛坯房出租,一楼东边套,2室1厅3卫,4米层高,可做二层。电梯旁有停车位,进出方便。适合办公做生意,空间大采光好。可租1-2年,价格可议,欢迎实地看房。同城自提,异地可视频看房。



4条评分威望+4
ywmgs01 威望 +1 - 昨天 21:41
王璐璐璐璐璐 威望 +1 - 昨天 19:23
清零 威望 +1 - 昨天 16:45
小浦人家 威望 +1 - 昨天 14:17
热点话题
特别声明:帖子及回帖全部内容为论坛用户自行上传发布并承担相应的法律责任,不代表本网站观点和立场,本网站仅提供信息存储服务。任何用户如认为页面上的特定内容涉及侵权,可通过页面底部侵权投诉指引向我们进行投诉。
本帖共有0条回复,请登录后查看。
  已有账号?点击登录
快速回复
限100 字节
如果您在写长篇帖子又不马上发表,建议存为草稿